09.03.2025

KULTURNÍ INTERIÉR, BRNO

Číst více

kategorie:
Soukromý interiér (novostavba)

autor a přihlašovatel:

Ing. arch. Eliška Šafránková, www.eliskasafrankova.cz

fotograf:
MgA Ondřej Straka

KULTURNÍ INTERIÉR, BRNO

Řadový dům s pohledovým betonem s galerií jako základem dobrého zvuku. Hudba má tady své neodmyslitelné místo, hudba zde dokonce vzniká. A díky proskleným příčkám je i denního světla dost tam, kde je ho potřeba.

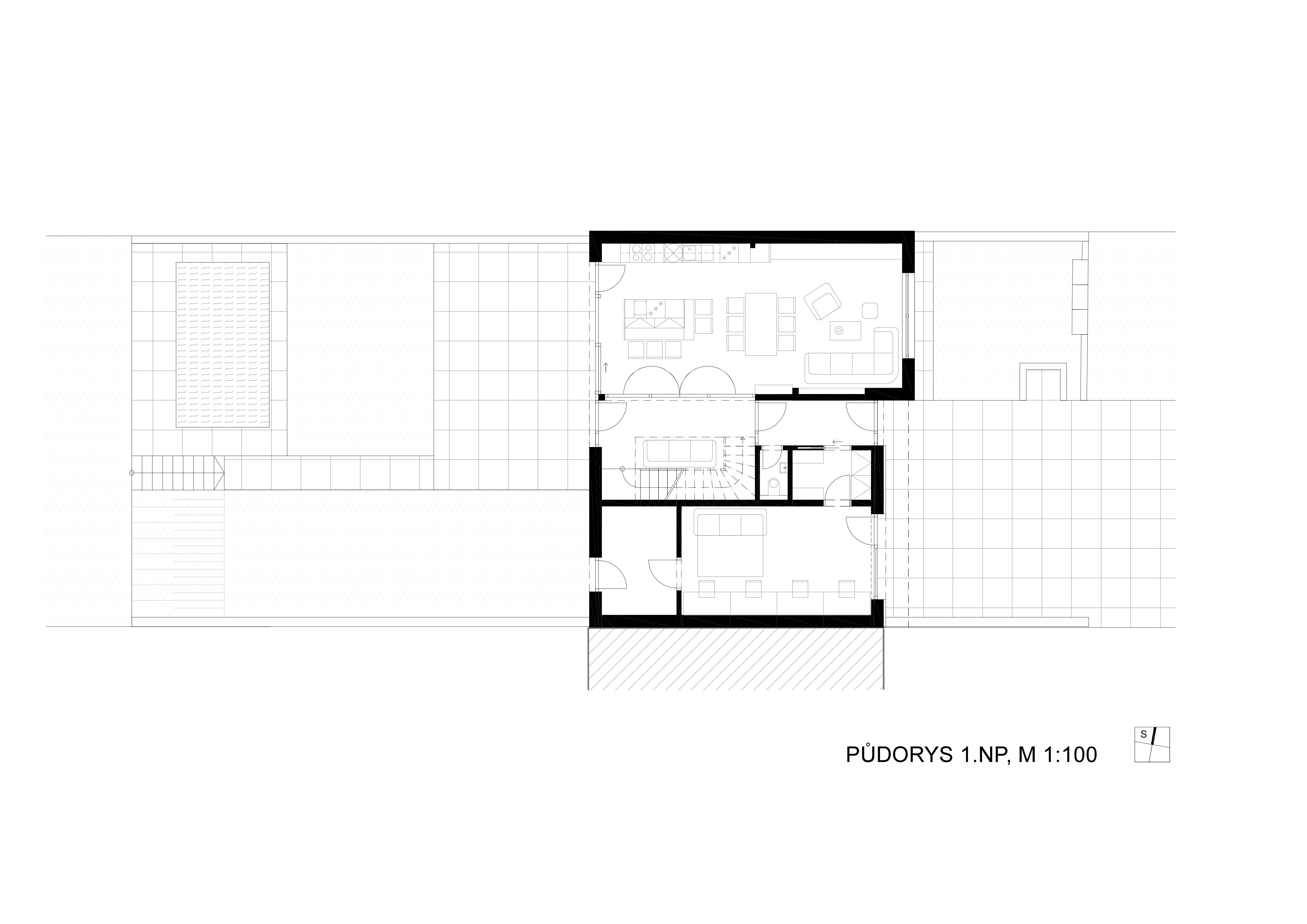
Rodinný dům se nachází v městské části Brna. Tato městská část je jednou z vesnic, kterou Brno v průběhu času přičlenilo, takže charakter zástavby je zde vesnický, většinou se jedná o řadové domu se sedlovou střechou orientované hřebenem rovnoběžně s ulicí. Tento dům se nachází na okraji obce, kde byla výstavba v 70. letech doplněna o typické samostatně stojící domky a dvojdomky s plochými střechami. Dům je proto navržen s respektem k okolní zástavbě také s plochou střechou, jedná se o jednoduchou hmotu. Parcela umožnila zástavbu řadovou.

Naším úkolem byl návrh domu i jeho interiéru. Jedná se o dům pro 5 člennou rodinu s domácími mazlíčky. Rodina je velmi kulturně zaměřená na poslech hudby, sledování filmů, hraní her a produkování hudby. Specifikem je biorytmus rodiny, kdy někteří ve dne pracují/chodí do školy, ale otec rodiny pracuje v noci, takže i když měl být prostor maximálně propojený a transparentní, bylo nutné ho zvukově rozdělit, aby se nenarušoval spánek spících. K tomu byly využity prosklené příčky. Ty nám také umožnily dostat západní slunce hluboko do interiéru a to konkrétně do jídelny, kam by se tolik světla jinak nedostalo vzhledem k řadovému charakteru zástavby.

Středobodem života v rodině je kuchyně s ostrůvkem. Ta navazuje na exteriér – terasu s pergolou. Obývací pokoj složí spíš jako audiovizuální sál na sledování filmů, hraní her a poslech hudby. V obývacím pokoji bylo potřeba vytvořit dostatek úložných prostor pro média všeho druhu – knihy, DVD, vinily. Velmi důležitou součástí domu je také pracovna /hudební zkušebna, kde se hudba
hraje i tvoří. Místnost mlže sloužit i jako pokoj pro hosty a je záměrně oddělen od zbytku domu šatnou, aby se provozy navzájem nerušily.
Dětské pokoje jsou určeny spíše na přespání a uskladnění oděvů a hraček než jako prostory pro trávení času, protože rodina je většinu času ve společenské části domu. Ložnice je řešena hotelovým způsobem s vlastní šatnou a koupelnou.
Zadáním bylo použít pouze přírodní materiály, interiér měl působit moderně, industriálně a útulně.

Specifický požadavek byl na požití pohledového betonu - ten se vyskytuje i v exteriéru na plotových zídkách, přístřešku nad vstupem a na zahradních prvcích – a dřeva – které se vykytuje také na fasádě jako obklad. Materiálové řešení se tady nabídlo samo – pohledový beton, který jsme nechali přiznaný na
stropech a desce schodiště; dřevo – které jako obklad probíhá z fasády do interiéru vstupní haly, dále se vyskytuje na podlahách a nábytku; a černé kovové prvky – zase jsou přiznané nosné ocelové konstrukce, dále se jedná o zábradlí, rámy prosklených příček, rámy oken, svítidla, nosné prvky nábytku, dveřní kliky a další detaily. Posledním materiálem je lakovaná MDF v antracitové barvě použitá na většině úložného vestavného nábytku, kromě obývacího pokoje.

V koupelnách byla použita velkoformátová dlažba ve světle šedé a 2 různých tmavě modrých odstínech s černými doplňky. Na toaletách byl použit drobnější obklad také modrý a nepravidelně glazovaný. Modrá je oblíbenou barvou členů rodiny a také se příjemně doplňuje s navazujícími dubovými podlahami. V koupelnách jsou vestavěné úložné prostory, aby bylo možné zachovat i při
každodenní používání koupelny čisté a uklizené.

Schodišťová hala je díky proskleným příčkám součástí společenské části domu. Prosklené příčky mají industriální charakter. Zde byl požadavek na útulné schodiště obložené dřevem. Celá hala se jednou stane galerií díky stěně probíhající přes 2 podlaží. Zábradlí je jednoduché, industriální, umožňující ozdobení vánočními světýlky v zimní sezóně. Zábradlí má působit subtilně a transparentně, proto jsme se snažili vyhnout masivním nosným sloupkům. Celá výplň, i když subtilní, je tady nosným prvkem subtilního madla a je vetknutá do bočnice stejné dimenze jako jsou tyče výplně. Tato bočnice ukončuje souvrství stropu a podlahy a souvrství schodišťové desky a dřevěného obkladu stupňů. Při čelním pohledu také maskuje tvar zakřiveného schodiště.

V budoucnu by na ni měl navázat vestavěný úložný prostor pod schodištěm. Přízemí schodišťové haly bude doplněno sofa a rozšíří tak prostory společenské části o další možnost posezení.

Číst více

Partneři

PARTNER DESIGNU CENY

GENERÁLNÍ PARTNER

PARTNER KATEGORIE

OFICIÁLNÍ VŮZ

PARTNER FASHION SHOW

HLAVNÍ MEDIÁLNÍ PARTNEŘI PRO ČR

HLAVNÍ MEDIÁLNÍ PARTNEŘI PRO SR

Tento web používá soubory cookie.

Soubory cookie používáme k personalizaci obsahu a reklam, poskytování funkcí sociálních médií a analýze naší návštěvnosti. Informace o vašem používání našich stránek také sdílíme s našimi partnery v oblasti sociálních médií, reklamy a analýzy, kteří je mohou kombinovat s dalšími informacemi, které jste jim poskytli nebo které shromáždili při vašem používání jejich služeb

Zakázat vše
Upravit jednotlivě
Povolit vše